ThermaSol HVLSRSQ-AB Handleiding
ThermaSol Douchesysteem HVLSRSQ-AB
Bekijk gratis de handleiding van ThermaSol HVLSRSQ-AB (1 pagina’s), behorend tot de categorie Douchesysteem. Deze gids werd als nuttig beoordeeld door 2 mensen en kreeg gemiddeld 4.6 sterren uit 4 reviews. Heb je een vraag over ThermaSol HVLSRSQ-AB of wil je andere gebruikers van dit product iets vragen? Stel een vraag
Pagina 1/1

92040_ NC
HVLSRSQ-
HVLSRSQ-
HVLSRSQ-
HVLSRSQ-HVLSRSQ-
XX
XX
XX
XXXX
Hydrovive
Hydrovive
Hydrovive
Hydrovive Hydrovive
*Rough-In Guide*
*Rough-In Guide*
*Rough-In Guide*
*Rough-In Guide**Rough-In Guide*
Audio
•Amplifier: 100Watt RMS, built in Digital Signal Processor
•Built-in Bluetooth v4.2
•1” Titanium Dome Tweeter with Ferro fluid cooled aluminum voice coil2-
•4” 1- woofer
•4” passive radiator1-
Lighting
•200 Full-color luminous LED (R,G,B) ,W
•Color Changing “Mood Lighting”
•Preset Chromatherapy Chakras
•Custom user programmable “any color”
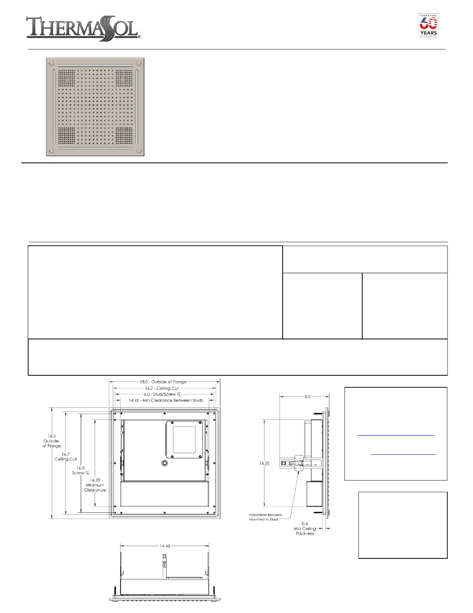
Installation Notes:
Overall size is 18 SQ .0”X 8.0 tall and requires approx. 16.7 16.7 cutout in the ””X ”
shower ceiling. The unit is self-contained as one piece and extends into the ceiling
space 8 clearance. .0” plus plumbing connectionUse a 3/8” compression fitting
and a flexible potable waterline to connect to the Rainhead. Use only potable
water and approved plumbing fittings for any shower connection. Refer to
ThermaSol Installation Instructions for full-sized template and detailed a
installation and operation instructions.
Shipping Information:
Weight……….37 lbs. ..
Length……………20 in.
Width…………....20 in.
Height…………...10 in.
Finish Chart:
Select desired finish and replace XX with code.
For any further assistance
please contact ThermaSol
at 800.776.0711 or
Visit www.thermasol.com
for a complete product
definition
SPECIFICATIONS Light and Sound Rain System –
Construction……………………………………….…Machined Brass
ControllabilityThermaTouch Series Controls ………….……………
Function Lights……………….……....200 -color luminous LEDFull
Rainhead Water Supply. 3/8- 1.8GPM …..……………..”, 4080PSI,
Water Jets……………………………….………………………….…300
CEC Approved
PC = Polished Chrome
SC = Satin Chrome
PB = Polished Brass
SB = Satin Brass
AB = Antique Brass
COP = Polished Copper
ACOP = Antique Copper
PN = Polished Nickel
SN = Satin Nickel
BN = Black Nickel
MB = Matte Black
AN = Antique Nickel
PG = Polished Gold
ORB = Oil Rubbed Bronze
WHT = White
Product Specification:
A self-contained, Light and Sound Rainhead module that creates high-intensity chromatherapy lights and sounds. Rainhead is rated at 1.8
GPM Max. at 80 PSI and requires a separate diverter port with shut off valve. Powered by: provided 24V DC, 30 Watts power supply.
Product specificaties
| Merk: | ThermaSol |
| Categorie: | Douchesysteem |
| Model: | HVLSRSQ-AB |
Heb je hulp nodig?
Als je hulp nodig hebt met ThermaSol HVLSRSQ-AB stel dan hieronder een vraag en andere gebruikers zullen je antwoorden
Handleiding Douchesysteem ThermaSol
12 Februari 2026
12 Februari 2026
11 Februari 2026
16 December 2025
Handleiding Douchesysteem
Nieuwste handleidingen voor Douchesysteem
12 Februari 2026
12 Februari 2026
12 Februari 2026
12 Februari 2026
12 Februari 2026
12 Februari 2026
12 Februari 2026
12 Februari 2026
12 Februari 2026
12 Februari 2026