WAC Lighting R3HSDR Handleiding
WAC Lighting Niet gecategoriseerd R3HSDR
Bekijk gratis de handleiding van WAC Lighting R3HSDR (3 pagina’s), behorend tot de categorie Niet gecategoriseerd. Deze gids werd als nuttig beoordeeld door 2 mensen en kreeg gemiddeld 4.0 sterren uit 3 reviews. Heb je een vraag over WAC Lighting R3HSDR of wil je andere gebruikers van dit product iets vragen? Stel een vraag
Pagina 1/3

1WAC Lighting retains the right to modify the design of our products at any time as part of the company's continuous improvement program. JANUARY, 2022
waclighting.com
Phone (800) 526.2588
Fax (800) 526.2585
Headquarters/Eastern Distribution Center
44 Harbor Park Drive
Port Washington, NY 11050
Central Distribution Center
1600 Distribution Ct
Lithia Springs, GA 30122
Western Distribution Center
1750 Archibald Avenue
Ontario, CA 91760
INSTALLATION INSTRUCTION
Patriot 3” LED - New Construction/Remodel
R3HRDR,R3HRAR,R3HSDR,R3HSAR
SAFETY INSTRUCTION
IMPORTANT: NEVER attempt any work without shutting off the electricity.
•Read all instructions before installing.
•System is intended for installation by a qualified electrician in accordance with the National Electrical Code and local regulations.
•Go to the main fuse box, or circuit breaker. Place the main power switch in the “OFF” position and unscrew the fuse(s) or switch “OFF” the
circuit breaker switch(es) that control the power to the fixture or room that you are working on.
•Place the wall switch in the “OFF” position.
AVERTISSEMENT
IMPORTANT : Coupez l’électricité avant TOUTE manipulation.
•Lisez toutes les instructions avant d’installer.
•Système est destiné à être installé par un électricien qualifié en onformité avec le code national de l’électricité et les règlements locaux.
•Accédez au panneau central de disjoncteurs ou de fusibles de votre demeure et placez l’interrupteur principal en position d’arrêt (« OFF »).
•Placez l’interrupteur mural en position d’arrêt (« OFF »).
CAUTION
All parts must be used as indicated in these instructions. Do not substitute any parts, leave parts out, or use any parts that are worn out or
broken. Failure to follow could invalidate the ETL/cETL listing of this fixture.
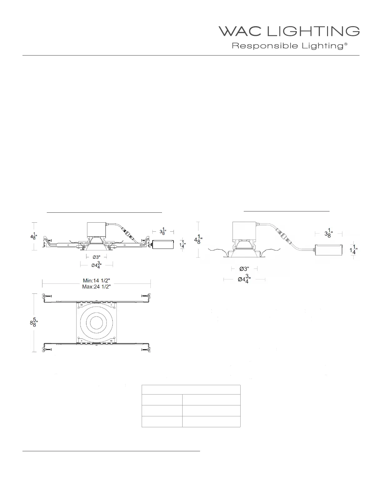
NEW CONSTRUCTION OVERALL DIMENSIONS
REMODELOVERALLDIMENSIONS
SPECIFICATIONS
Input:120-277V
Installation:IC for all models (11W)
Dimming:ELV / TRIAC
Product specificaties
| Merk: | WAC Lighting |
| Categorie: | Niet gecategoriseerd |
| Model: | R3HSDR |
Heb je hulp nodig?
Als je hulp nodig hebt met WAC Lighting R3HSDR stel dan hieronder een vraag en andere gebruikers zullen je antwoorden
Handleiding Niet gecategoriseerd WAC Lighting
11 Februari 2026
11 Februari 2026
11 Februari 2026
11 Februari 2026
11 Februari 2026
10 Februari 2026
10 Februari 2026
10 Februari 2026
10 Februari 2026
10 Februari 2026
Handleiding Niet gecategoriseerd
Nieuwste handleidingen voor Niet gecategoriseerd
11 Februari 2026
11 Februari 2026
11 Februari 2026
11 Februari 2026
11 Februari 2026
11 Februari 2026
11 Februari 2026
11 Februari 2026
11 Februari 2026
11 Februari 2026