Legrand TSDCL303P Handleiding
Legrand Csavaros gép TSDCL303P
Bekijk gratis de handleiding van Legrand TSDCL303P (2 pagina’s), behorend tot de categorie Csavaros gép. Deze gids werd als nuttig beoordeeld door 19 mensen en kreeg gemiddeld 4.8 sterren uit 3 reviews. Heb je een vraag over Legrand TSDCL303P of wil je andere gebruikers van dit product iets vragen? Stel een vraag
Pagina 1/2

No: 341241 10/19
Toggle Slide Dimmer: CFL/LED 2.5A (300W), 120VAC, 60Hz; Incandescent/Halogen 700W,
120VAC, 60Hz
Gradateurs à Bascule: CFL/LED 2.5 A (300 W), 120 VCA, 60 Hz; Incandescents/Halogène
700 W, 120 VCA, 60 Hz
Atenuadores de Palanca: CFL/LED 2.5 A (300 W), 120 VCA, 60 Hz; Incandescente/Halógeno
700 W, 120 VCA, 60 Hz
Installation Instructions • Instrucciones de Instalación • Notice d’Installation
For technical support, call 1-800-223-4185.
Catalog Number(s) • Numéro(s) de Catalogue • Les Numéros de Catalogue: TSDCL303P* (*denotes color sux)
Country of Origin: Made in China • Pays d’origine: Fabriqué en Chine • País de origen: Hecho en China
READ AND SAVE THESE INSTRUCTIONS
To be installed by a certified electrician or other qualified
person.
WARNING – To prevent severe shock or electrocution,
always turn power off at the service panel before
installing this unit, working on the circuit, or changing
a lamp.
CAUTION: To reduce the risk of overheating and
possible damage to other equipment:
• Do not install dimmer to control a receptacle, a
motor-operated appliance, or a transformer-supplied
appliance.
• Use only with incandescent or compatible dimmable
CFL/LED bulbs which screw into conventional
incandescent lamp sockets (compatible bulbs listed
at www.legrand.us).
Connect to 120VAC, 60 Hz power source only.
A 10W minimum load is required.
Use copper wire only.
LIRE ET CONSERVER CES INSTRUCTIONS
Doit être installé par un électricien certifié ou une autre
personne qualifiée.
AVERTISSEMENT – Pour éviter tout choc électrique ou
une électrocution, toujours couper l’électricité au niveau
du panneau d’alimentation avant d’installer cette unité,
de travailler sur le circuit électrique ou de changer une
lampe.
ATTENTION : Pour réduire le risque de surchauffe ou
d’endommagement d’autres pièces d’équipement :
• Ne pas installer un gradateur pour contrôler une
prise électrique, ou un appareil ménager équipé d’un
moteur ou alimenté par un transformateur.
• À n’utiliser qu’avec des ampoules à incandescence ou
variable à luminosité CFL/LED ampoules compatibles
qui se vissent dans des douilles d’ampoules à
incandescence traditionnelles (ampoules compatibles
énumérés à www.legrand.us).
Connecter à une source de 120 VCA, 60 Hz
uniquement.
Une charge minimale de 10W est requise.
N’utiliser que des fils en cuivre.
LEA Y CONSERVE ESTAS INSTRUCCIONES
Para ser instalado por un electricista certificado o
persona competente.
ADVERTENCIA – Para evitar descargas eléctricas
serias o electrocución, antes de instalar, trabajar en
el circuito o cambiar una lámpara de este atenuador
apague siempre el suministro eléctrico en el panel de
servicio.
PRECAUCIÓN: Para reducir el riesgo de
sobrecalentamiento y posibles daños a otros equipos:
• No instale un atenuador para controlar un
tomacorriente, un electrodoméstico que funciona con
motor o un electrodoméstico con transformador.
• Utilícese solamente con bombillas incandescentes
CFL o LED atenuables que se atornillan en
portalámparas incandescentes convencionales
(bombillas compatibles enumerados en www.legrand.us).
Conecte solamente a un suministro eléctrico de 120
VAC, 60 Hz.
Una carga minima de 10W es requerida.
Utilice únicamente alambres de cobre.
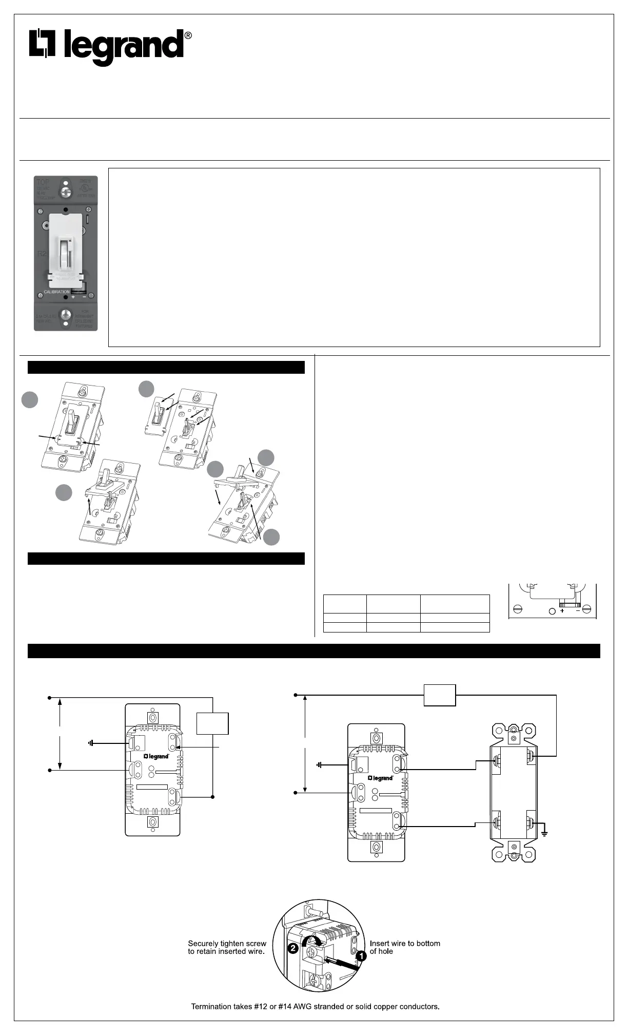
DIRECTIONS
1. Disconnect power to circuit by removing fuse or turn circuit breakers OFF
before installing.
2. Remove wall plate and switch mounting screws, pull existing switch from wall box.
3. Disconnect existing switch from circuit. For 3-way installations: Identify the
“Common” wire (wire connected to the terminal marked common or odd colored
terminal). For new installation identify wire connected to power source or to the load.
4. Connect dimmer as shown in the installation diagram using #12 or #14 AWG
stranded or solid copper conductors. Strip wire using gauge on back of device
(Figure 1 or Figure 2).
5. Install dimmer in wall box, with word “TOP” on the strap right side up, using mounting
screws provided.
6. Attach wall plate and then restore power to circuit.
7. Dimmer may require adjustment to the low end setting to reliably start and/or remove
flickering in bulbs. To adjust, DISCONNECT POWER FROM CIRCUIT, and remove
the Wallplate. Use a small insulated, flat tipped screwdriver to adjust the trim pot
wheel, which is accessible via the slot (marked “CALIBRATION”) provided on the
strap (Figure 3). Turn the wheel left to increase the minimum light intensity setting
and turn the wheel right to decrease light intensity. Next, install the Wallplate,
restore the power and test. Repeat above as necessary.
Note: Never adjust trim pot when circuit is live.
To re-calibrate settings turn the trim pot wheel all the way towards the “-” sign
and incrementally progress to “+” sign until flickering is removed (refer to Step
7 above).
Note: This device should be installed after sheet rocking and painting are completed.
Note: It is normal for the dimmer to feel warm during operation. Use a separate neutral
wire for each phase of a multiphase system containing a dimmer, and for high power
single phase applications where flickering is present.
Any combination of dimmer models and other devices may be ganged together. De-rate
the maximum load according to the following table:
TOP
120 VAC
60 Hz
TSOCL303P
E95219
LISTED 75M8
CALIBRATION
PRESS TABS
TO REMOVE
2.5A CFLAED
700W INC
FOR
PERMANENT
CLF/LED/AC
FIXTURES
Figure 3
INSTALLATION DIAGRAM FOR DIMMERS
Rated Load
3 Gang (or more)
Installation
Incd./Hal.700W650W
CFL/LED2.5A2.5A
Screw Pressure Plate Back Wire
Neutral (White)
120VAC 60 Hz
Wire to Load
Do not use
this terminal
Green
Ground
Screw
LIGHT
Hot (Black)
Line
COMMON
SINGLE
POLE
3-WAY
Figure 1
Single Pole Installation
Neutral (White)
120VAC 60 Hz
Hot (Black)
Traveler Wire
to 3-Way Switch
Green
Ground
Screw
LIGHT
Traveler Wire
to 3-Way Switch
Ground
Line
3-WAY SWITCH
COMMON
SINGLE
POLE
3-WAY
COMMON
Figure 2
3-Way Installation
Toggle, actuator, slider,
and lever must be in full
up position as shown
before installing the color
change kit
Snap down
cover making
sure slider is
engaged
Align
toggle
and slider
Insert tabs
first
Press tabs
to remove
kit
COLOR CHANGE KIT DIRECTIONS
1
2
3
4a
4c
Remove
4b
TSDCL303PW
Product specificaties
| Merk: | Legrand |
| Categorie: | Csavaros gép |
| Model: | TSDCL303P |
Heb je hulp nodig?
Als je hulp nodig hebt met Legrand TSDCL303P stel dan hieronder een vraag en andere gebruikers zullen je antwoorden
Handleiding Csavaros gép Legrand
31 December 2026
28 December 2025
28 December 2025
8 December 2025
8 December 2025
8 December 2025
7 December 2025
7 December 2025
7 December 2025
7 December 2025
Handleiding Csavaros gép
Nieuwste handleidingen voor Csavaros gép
14 Januari 2026
14 Januari 2026
13 Januari 2026
13 Januari 2026
13 Januari 2026
9 Januari 2026
9 Januari 2026
8 Januari 2026
8 Januari 2026
8 Januari 2026