Hager HXD042H Handleiding
Hager Niet gecategoriseerd HXD042H
Bekijk gratis de handleiding van Hager HXD042H (4 pagina’s), behorend tot de categorie Niet gecategoriseerd. Deze gids werd als nuttig beoordeeld door 8 mensen en kreeg gemiddeld 4.6 sterren uit 5 reviews. Heb je een vraag over Hager HXD042H of wil je andere gebruikers van dit product iets vragen? Stel een vraag
Pagina 1/4

Ech. 30%
Ech. 17%
AI1_h400_Cde motorisée_T1_01
Ech. 25%
AI1_h400_Cde motorisée_T1_03
244 mm
140
160 mm
213
116
Ech. 20%
(vis + connecteur = 30%)
AI1_h400_Cde motorisée_T1_02
x1
x1
x 2
x 2
x 1
a
Commande motorisée HXD04.HNotice d’instructions
z
Motor operator HXD04.HUser instructions
e
Motorantrieb HXD04.HMontageanleitung
y
Comando a motore HXD04.HIstruzioni di montaggio
r
Mando motor HXD04.HInstrucciones de uso
i
Motoraandrijving HXD04.HGebruiksaanwijzing
t
Comando motorizado HXD04.HInstruções de instalação
o
Motorbetjening HXD04.HBruksanvisning
u
Πιλότoς κινητήρα HXD04.HOδηγίες χρήσεως
m
Napęd silnikowy HXD04.HInstrukcja obsługi
w
Мотор-привод HXD04.HРуководство по эксплуатации
n
电机操作 HXD04.H用户手册
Ech. 35%
AI1_h400_Cde motorisée_T1_04
CHARGED
PUSH TO
TRIP
PUSH TO
TRIP
1
5
2
3
4
PUSH TO
ON
PUSH TO
ON
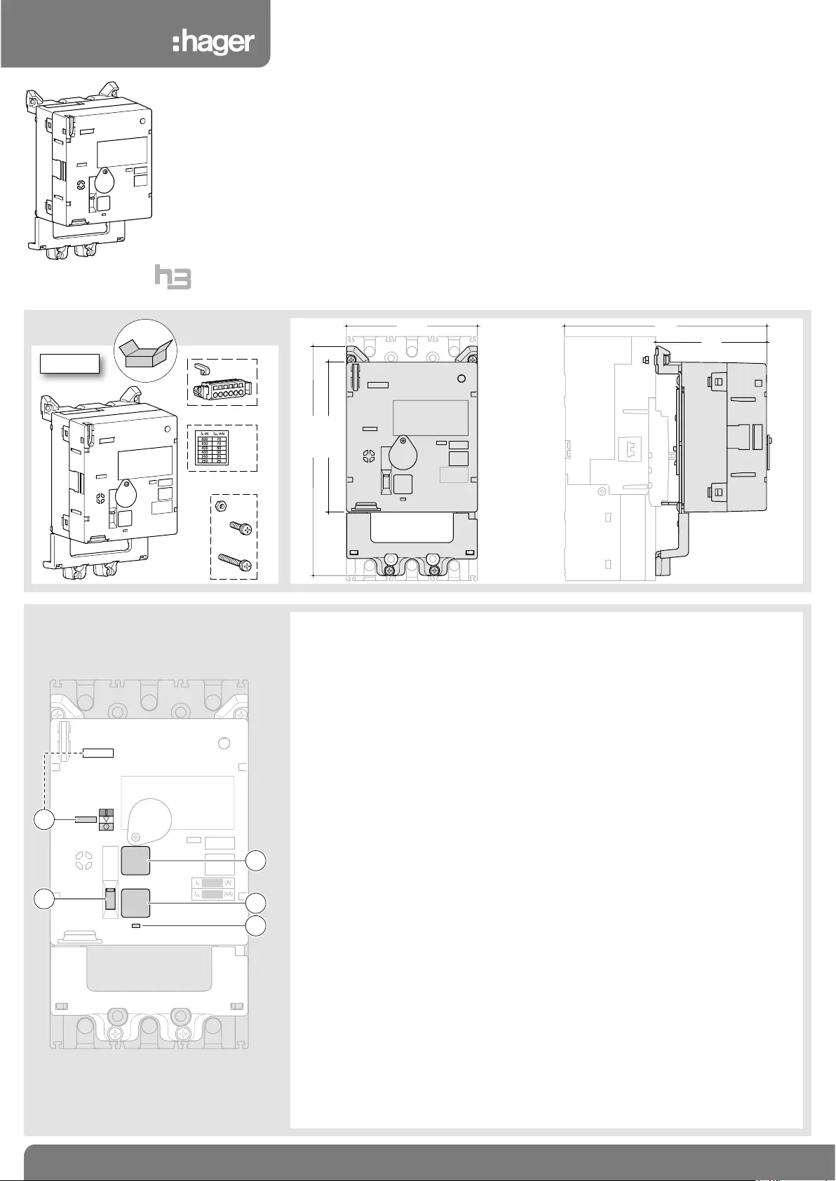
1 indicateur de position de la manette :
- rouge = ON (discharged)
- blanc = déclenché (charged)
- vert = OFF / Reset (charged
)
2bouton d’armement
3 bouton de déclenchement
4 voyant de bon fonctionnement
5 levier de sélection :
- position basse = manuel
- position haute = motorisé
1 handle position indicator:
- red = ON (discharged)
- white = trip (charged)
- green = OFF / Reset (charged
)
2«put in on» button
3 button, Push-to-Trip
4 «good work» light indicator
5 select lever:
- low position = manual
- top position = motorized
1 Position des Schalthebels:
- rot = EIN (discharged)
- weiss = ausgelöst (charged)
- grün = AUS / Reset (charged
)
2Startknopf
3 Prüftaste, zum auslösen drücken
4 Anzeige = in Betrieb
5 Auswahlschalter
- Untere Position = Handbetrieb
- Obere Position = Motorbetrieb
1 indicatore di posizione della leva di
manovra:
- rosso = ON (discharged)
- bianco = scanciato (charged)
- verde = OFF / Reset (charged
)
2pulsante di riarmo
3 pulsante di sgancio
4 LED = funzionamento corretto
5 selettore funzionamento
- posizione bassa = manuale
- posizione alta = mototizzato
1 Indicador de posición de la maneta:
- rojo = ON (descargado)
- blanco = disparado (cargado)
- verde = OFF / Reset (cargado
)
2botón de rearme
3 pulsador de disparo
4 piloto indicador de funcionamiento
correcto
5 Selector de modo de funcionamiento
- selector arriba = manual
- selector abajo = motorizado
1 hendelstand-indicator:
- rood = ON (discharged)
- wit = Uitgeschakeld (charged)
- groen = OFF / Reset (charged
)
2bewapeningsknop
3 uitschakelknop
4 LED = goede werking
5 selectiehendel:
- laagstand = manueel
- hoogstand = gemotoriseerd
1 indicador de posição do punho:
- encarnado = ON (discharged)
- branco = Disparo (charged)
- verde = OFF / Reset (charged
)
2botão para armar / ligar
3 botão de disparo
4 LED = bom funcionamento
5 selector de operação
- posição inferior = manual
- posição superior = motorizado
1 bryterknappens posisjon indikerer:
- rød = PÅ (discharged)
- hvit = Utløst (charged)
- grønn = AV / Reset (charged
)
2startknapp
3 utløserknapp
4 LED = i drift
5 modusvelger
- nedre stilling = manuell
- øvre stilling = motorisert
1 Oπτική ένδειξη της κατάστασης
τoυ διακόπτη:
- κόκκινo = ON (discharged)
- λευκό = πτώση διακόπτη
ισχύoς (charged)
- πράσινo = OFF / Reset (charged)
2 πλήκτρο ενεργοποίησης
3 Πλήκτρo διακoπής
4 λυχνία ένδειξης καλής λειτουργίας
5 επιλογή κατάστασης του διακόπτη:
- κάτω θέση : χειροκίνητη
- επάνω θέση : αυτόματη
1 Wskaźnik pozycji dźwigni:
- czerwony = ON (załączony)
- biały = Trip (wyzwolony)
- zielony = OFF (wyłączony)
2
Przycisk załącz
3 Przycisk wyłącz
4 Wskaźnik poprawnego działania
5 Wybór sterowania:
- pozycja dolna = ręczne
- pozycja górna = silnikowe
1Положение раб. органа:
- красный = ВКЛ (разряжен)
- белый = расцеплен (взведен)
- зелёный = ВЫКЛ / Готов
(взведен)
2 кнопка «»установить»
3 кнопка «снять»
4 Световой индикатор «работа
нормальная»
5 рычажок выбора:
- внизу = ручное
- вверху = моторизованное
1
手柄位置指示:
- 红 =ON (释能)
- 白 = trip (储能)
- 绿 = OFF/Reset (储能)
2 进入 "ON" 按钮
3 进入 "OFF" 按钮
4"工作正常" 指示灯
5选择位 : 低位 = 手动, 高位 = 电动
3 P - 4 P
1
6H5533.d
h400, h630
6H5533.d
Product specificaties
| Merk: | Hager |
| Categorie: | Niet gecategoriseerd |
| Model: | HXD042H |
Heb je hulp nodig?
Als je hulp nodig hebt met Hager HXD042H stel dan hieronder een vraag en andere gebruikers zullen je antwoorden
Handleiding Niet gecategoriseerd Hager
12 Mei 2025
12 Mei 2025
12 Mei 2025
12 Mei 2025
12 Mei 2025
12 Mei 2025
12 Mei 2025
12 Mei 2025
12 Mei 2025
12 Mei 2025
Handleiding Niet gecategoriseerd
Nieuwste handleidingen voor Niet gecategoriseerd
10 Maart 2026
10 Maart 2026
10 Maart 2026
10 Maart 2026
10 Maart 2026
10 Maart 2026
10 Maart 2026
10 Maart 2026
10 Maart 2026
10 Maart 2026