Elkay AP99 Handleiding
Elkay Water dispenser AP99
Bekijk gratis de handleiding van Elkay AP99 (1 pagina’s), behorend tot de categorie Water dispenser. Deze gids werd als nuttig beoordeeld door 6 mensen en kreeg gemiddeld 4.4 sterren uit 2 reviews. Heb je een vraag over Elkay AP99 of wil je andere gebruikers van dit product iets vragen? Stel een vraag
Pagina 1/1

98345C (REV.- 11-06)
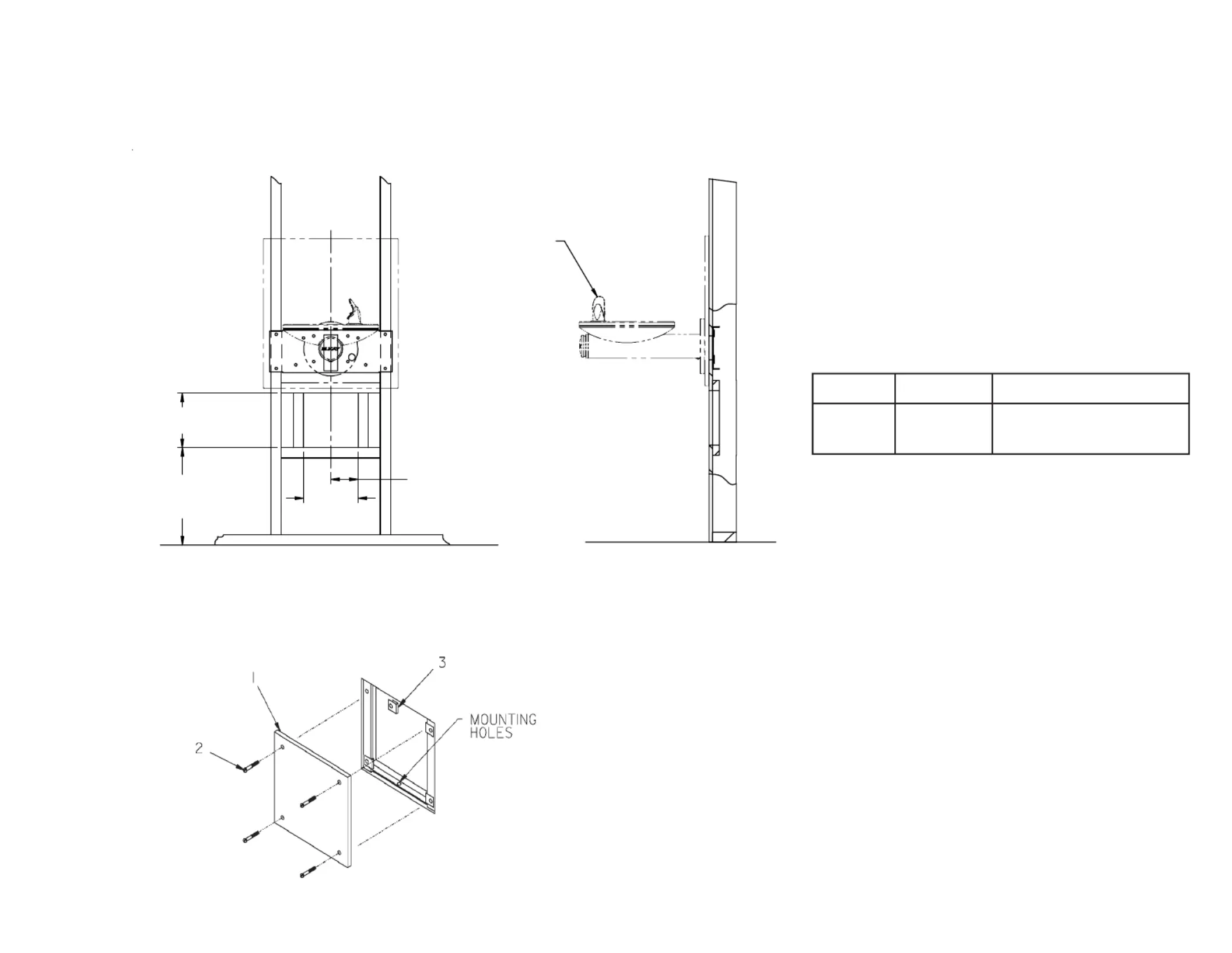
HEIGHT
TO SUIT
APPLICATION
8
203mm
4.0
102mm
8
203mm
FINISHED FLOORFINISHED FLOOR
SWIRLFLO FOUNTAIN
SHOWN FOR REF.
FOR PARTS, CONTACT YOUR LOCAL DISTRIBUTOR OR CALL 1.800.323.0620
ELKAY MANUFACTURING COMPANY - 2222 CAMDEN CPOURT - OAKBROOK, IL 60523 - 630.574.8484
OPTIONAL ACCESS PANEL (AP99)
1. POSITION CLIPS (4) ON FRAME'S FLANGES (FLAT SIDE
OF CLIPS TO BE TOWARD FRONT).
2. PLACE ACCESS PANEL FRAME INTO 8" X 8" (203 mm x 203 mm)
WALL OPENING. NOTE: POSITION WITH FLANGES ON THE LEFT
AND RIGHT SIDES OF THE OPENING. FACE OF FRAME SHOULD
BE FLUSH WITH OR MAXIMUM 7/8" (22 mm) BEHIND FINISHED WALL.
3. SECURE FRAME IN PLACE THROUGH MOUNTING HOLES.
(FASTENERS PROVIDED BY OTHERS).
4. PLACE ACCESS PANEL OVER FRAME AND SECURE IN PLACE
USING (4) HEX SOCKET SCREWS. NOTE: INSTALLATION OF
THESE SCREWS WILL REQUIRE THE USE OF AN ALLEN WRENCH.
(WRENCH NOT FURNISHED).
1. PANEL PROVIDES ACCESS TO PLUMBING
CONNECTIONS (WATER SUPPLY & DRAIN).
2. CONNECTIONS FOR PLUMBING HOOKUP
PROVIDED BY OTHERS.
INSTALLATION INSTRUCTIONS FOR AP99 ACCESS PANEL
55000966
74080057
70055C
1
2
3
PANEL
#8-32 X 1.50 HSBH ST STEEL
NUT-SPEED
PART. NO.DESCRIPTIONITEM NO.
PARTS LIST
Product specificaties
| Merk: | Elkay |
| Categorie: | Water dispenser |
| Model: | AP99 |
Heb je hulp nodig?
Als je hulp nodig hebt met Elkay AP99 stel dan hieronder een vraag en andere gebruikers zullen je antwoorden
Handleiding Water dispenser Elkay
21 Maart 2026
18 Maart 2026
18 Maart 2026
18 Maart 2026
18 Maart 2026
18 Maart 2026
18 Maart 2026
18 Maart 2026
17 Maart 2026
17 Maart 2026
Handleiding Water dispenser
Nieuwste handleidingen voor Water dispenser
1 April 2026
1 April 2026
1 April 2026
26 Maart 2026
23 Maart 2026
18 Maart 2026
18 Maart 2026
17 Maart 2026
17 Maart 2026
17 Maart 2026