American Standard Town Square S 2851A104 Handleiding
American Standard Toilet Town Square S 2851A104
Bekijk gratis de handleiding van American Standard Town Square S 2851A104 (12 pagina’s), behorend tot de categorie Toilet. Deze gids werd als nuttig beoordeeld door 4 mensen en kreeg gemiddeld 4.6 sterren uit 7 reviews. Heb je een vraag over American Standard Town Square S 2851A104 of wil je andere gebruikers van dit product iets vragen? Stel een vraag
Pagina 1/12

7301450-100 Rev. 2 (3/19)
Product names listed herein are trademarks of AS America, Inc.
© AS America, Inc. 2019
RECOMMENDED TOOLS AND MATERIALS
Putty Knife
Closet Bolts
Regular Screwdriver
Wax Ring/Gasket
Adjustable Wrench
Flexible Supply Tube
Sealant
Hacksaw
Carpenters Level
Tape Measure
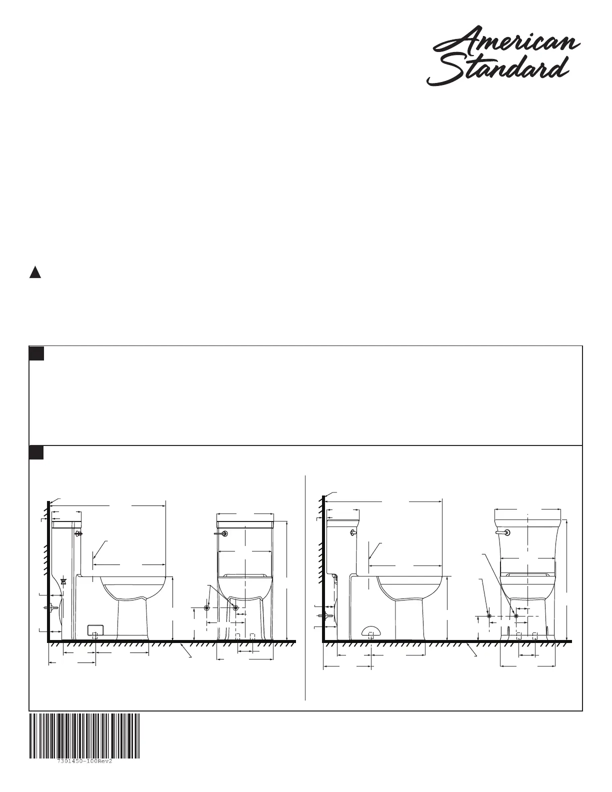
ROUGHING-IN DIMENSIONS:
REMOVE OLD TOILET
1
2
a. Close toilet supply valve and flush tank completely. Towel or sponge remaining water from tank and bowl.
b. Disconnect and remove supply line. NOTE: If replacing valve, first shut off main water supply!
c. Remove old mounting hardware, remove toilet and plug floor waste opening to prevent escaping sewer gases.
d. Remove closet bolts from flange and clean away old wax, putty, etc. from base area.
NOTE:Mounting surface must be clean and level before new toilet is installed!
SAVE FOR FUTURE USE
BOULEVARD
®
- 1.28 gpf/4.8 Lpf One-Piece Toilet
Model 2891 - Elongated Right Height
®
with Seat
TROPIC
®
- 1.28 gpf/4.8 Lpf One-Piece Toilet
Model 2786 - Elongated Right Height
®
with Seat
TOWN SQUARE
®
- 1.28 gpf/4.8 Lpf One-Piece Toilet
Model 2847 - Elongated Right Height
®
with Seat
TOWN SQUARE
®
S - 1.28 gpf/4.8 Lpf One-Piece Toilet
Model 2851A - Elongated Right Height
®
with Seat
Model 2786 - TROPIC 1.28 gpf/ 4.8 Lpf
Model 2891 - BOULEVARD 1.28 gpf/ 4.8 Lpf
CAUTION: PRODUCT IS FRAGILE. TO AVOID BREAKAGE AND POSSIBLE INJURY HANDLE WITH CARE!
NOTE: Pictures may not exactly define contour of china and components.
Thank you for selecting American Standard – the benchmark of fine quality for over 140 years. To ensure this product is installed properly, please read
these instructions carefully before you begin. (Certain installations may require professional help.) Also be sure your installation conforms to local codes.
!
INSTALLATION INSTRUCTIONS
NOTE: Distance from wall to closet flange centerline must be as listed below:
C/L OF SEAT POST
HOLES 5-1/2"
(140mm) CENTERS
29-3/4"
(756 mm)
8-1/8"
(206 mm)
3/4"
(19 mm)
18-1/2"
(470 mm)
3-1/2"
(88 mm)
8-1/2"
(217 mm)
13-1/2"
(345 mm)
14"
(354 mm)
16-3/4"
(424 mm)
30-1/2"
(778 mm)
16-1/2"
(419 mm)
12"
(305 mm)
C/L OF OUTLET AND
TOILET MTG BOLTS
FINISHED WALL
IMPORTANT: Water supply on the wall is required at 3-3/4" or 9" from centerline of the toilet (see rough-in).
First suggested position is hidden behind the toilet. The geometry of the toilet gives space for this installation.
The second suggested position is next to the toilet. Between these two positions, the space for the supply
between wall and toilet is limited to 3-1/4". In this case, check your supply and hose dimensions.
IMPORTANT: Water supply on the wall is required at 3-3/4" or 9" from centerline of the toilet (see rough-in).
First suggested position is hidden behind the toilet. The geometry of the toilet gives space for this installation.
The second suggested position is next to the toilet. Between these two positions, the space for the supply
between wall and toilet is limited to 3-1/4". In this case, check your supply and hose dimensions.
FINISHED
FLOOR
2-7/8"
(74mm)
5-1/2"
(140mm)
SUPPLY AS
REQUIRED
(position 2)
SUPPLY AS
REQUIRED
(position 1)
6"
(152mm)
3-3/4"
(95mm)
9"
(229mm)
14"
(355 mm)
29-3/4"
(756 mm)
7-1/2"
(192 mm)
3/4"
(19 mm)
18-1/2"
(470 mm)
16-1/2"
(419 mm)
14-1/2"
(368 mm)
30-1/2"
(778 mm)
13-1/2"
(345 mm)
14-1/4"
(364 mm)
8-1/2"
(217 mm)
12"
(305 mm)
C/L OF SEAT POST
HOLES 5-1/2"
(140mm) CENTERS
FINISHED WALL
3-3/8"
(86mm)
3-1/4"
(83mm)
SUPPLY
AS
REQUIRED
(position 1 or
position 2)
6"
(152mm)
5-1/2"
(140mm)
3-3/4"
(95mm)
9"
(229mm)
14"
(350 mm)
FINISHED
FLOOR
OR
Product specificaties
| Merk: | American Standard |
| Categorie: | Toilet |
| Model: | Town Square S 2851A104 |
Heb je hulp nodig?
Als je hulp nodig hebt met American Standard Town Square S 2851A104 stel dan hieronder een vraag en andere gebruikers zullen je antwoorden
Handleiding Toilet American Standard
2 Maart 2026
26 Februari 2026
26 Februari 2026
26 Februari 2026
26 Februari 2026
26 Februari 2026
26 Februari 2026
25 Februari 2026
25 Februari 2026
25 Februari 2026
Handleiding Toilet
Nieuwste handleidingen voor Toilet
24 Maart 2026
24 Maart 2026
13 Maart 2026
8 Maart 2026
7 Maart 2026
26 Februari 2026
25 Februari 2026
25 Februari 2026
25 Februari 2026