American Standard Portsmouth T415502.002 Handleiding
American Standard Douchesysteem Portsmouth T415502.002
Bekijk gratis de handleiding van American Standard Portsmouth T415502.002 (4 pagina’s), behorend tot de categorie Douchesysteem. Deze gids werd als nuttig beoordeeld door 2 mensen en kreeg gemiddeld 4.8 sterren uit 2 reviews. Heb je een vraag over American Standard Portsmouth T415502.002 of wil je andere gebruikers van dit product iets vragen? Stel een vraag
Pagina 1/4

T415.50X
T420.50X
Series
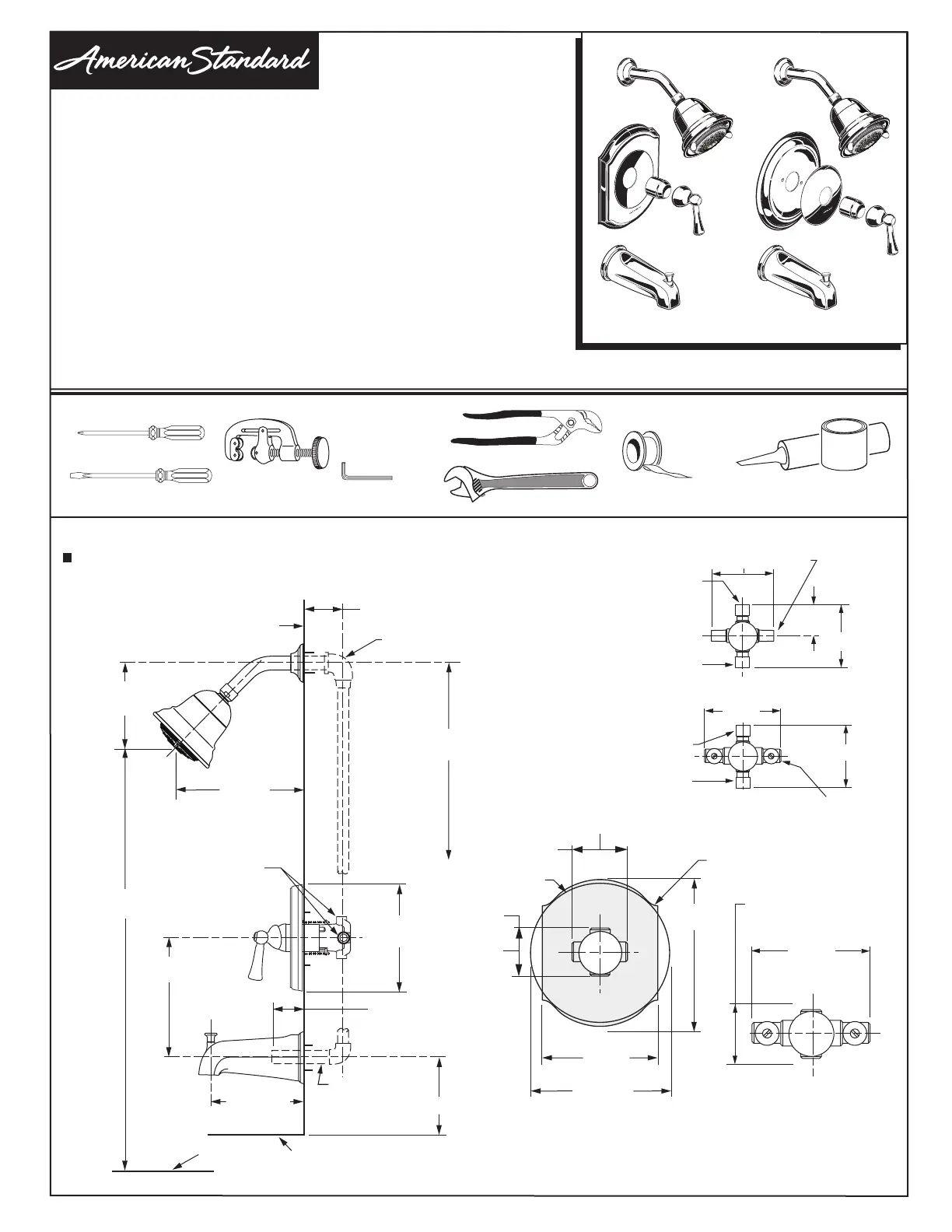
PORTSMOUTH
™
IN WALL PRESSURE BALANCING
BATH AND SHOWER TRIM KIT
To assure proper positioning in relation to wall,
note roughing-in dimensions.
ROUGHING-IN DIMENSIONS
Certified to comply with ANSI A112.18.1
Installation
Instructions
Tubing Cutter
5/64"
Hex Wrench
Recommened Tools
Adjustable Wrench
Channel Locks
Flat Blade Screwdriver
Plumbers' Putty or Caulking
Phillips Screwdriver
Thank you for selecting American-Standard...
the benchmark of fine quality for over 100 years.
To ensure that your installation proceeds smoothly--
please read these instructions carefully before
you begin.
1-5/8" TO 3"
(41mm TO 76mm)
FINISHED WALL
4" (102 mm)
BOTTOM OF TUB
74" FOR HEAD CLEARANCE
(188 cm)
18" OPTIONAL
(45,7 cm)
5-1/8" REF.
(130 mm) REF.
1/2" NPT
(12,7 mm) NPT
7-5/8"
(195 mm)
7-13/16"
(198 mm)
OPTIONAL TO FINISHED FLOOR
USUALLY BETWEEN 65'' AND 78''
TOP OF TUB RIM
SHR
TUB
"SEE ILLUSTRATION"
T415T420
H
C
216mm
(8-1/2")
REF.
125mm
(4-7/8")
REF.
1/2" COPPER
1-1/2" REF.
(38mm) REF.
INLETS 1/2" NPT
ESCUTCHEON T415
OUTLETS
1/2" NPT
3-3/8"
3-3/8"
6-1/2"
(165 mm)
ESCUTCHEON T420
7-5/8" DIA.
(195 mm)
THREADED INLETS (STOPS)
INLETS
1/2" NPT
5-7/8"
OUTLETS
1/2" NPT
3-3/8"
THREADED INLETS
SHR. 1/2" NOM.
COPPER SWEAT
TUB 1/2" NOM.
COPPER SWEAT
4-1/16"
5-7/8"
INLETS
4-1/16"
4-1/16"
INLETS
1/2" NOM.
COPPER
SWEAT
SHR. 1/2" NOM.
COPPER SWEAT
TUB 1/2" NOM.
COPPER SWEAT
2"
SWEAT
INLETS
SWEAT
INLETS (STOPS)
INLETS
1/2" NOM.
COPPER
SWEAT
C
o
ld
Ho
t
M965028 REV.1.7 (12/14)
Teflon
Tape
Product specificaties
| Merk: | American Standard |
| Categorie: | Douchesysteem |
| Model: | Portsmouth T415502.002 |
Heb je hulp nodig?
Als je hulp nodig hebt met American Standard Portsmouth T415502.002 stel dan hieronder een vraag en andere gebruikers zullen je antwoorden
Handleiding Douchesysteem American Standard
28 Februari 2026
28 Februari 2026
28 Februari 2026
27 Februari 2026
27 Februari 2026
27 Februari 2026
27 Februari 2026
27 Februari 2026
26 Februari 2026
26 Februari 2026
Handleiding Douchesysteem
Nieuwste handleidingen voor Douchesysteem
10 April 2026
9 April 2026
9 April 2026
8 April 2026
7 April 2026
7 April 2026
7 April 2026
7 April 2026
7 April 2026
7 April 2026