American Standard Moments T506508.002 Handleiding
American Standard Douchesysteem Moments T506508.002
Bekijk gratis de handleiding van American Standard Moments T506508.002 (3 pagina’s), behorend tot de categorie Douchesysteem. Deze gids werd als nuttig beoordeeld door 3 mensen en kreeg gemiddeld 4.3 sterren uit 9 reviews. Heb je een vraag over American Standard Moments T506508.002 of wil je andere gebruikers van dit product iets vragen? Stel een vraag
Pagina 1/3

5-5/8" REF.
T506.50X
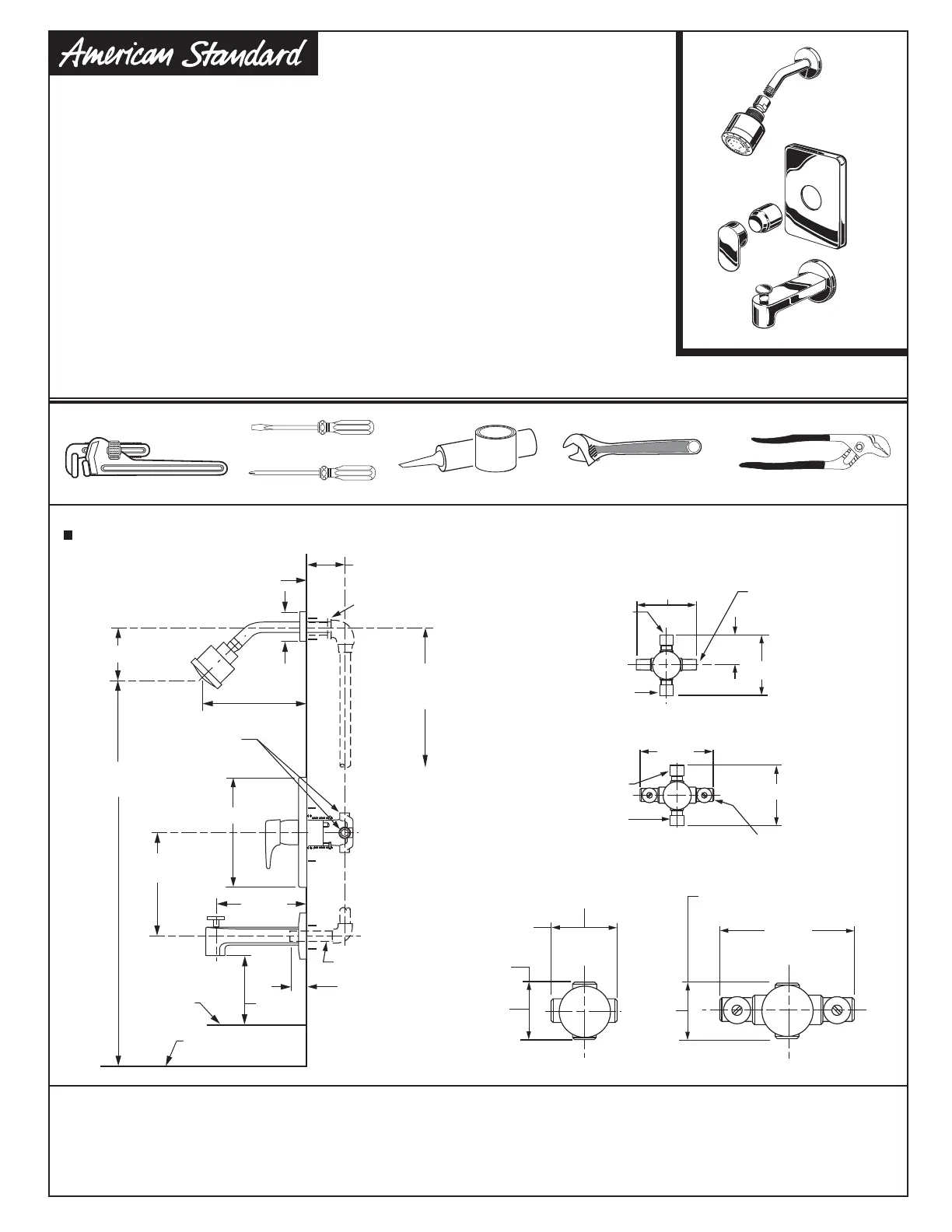
To assure proper positioning in relation to wall, note
roughing-in dimensions.
ROUGHING-IN DIMENSIONS
Certified to comply with ANSI A112.18.1
Installation
Instructions
Recommended Tools
Flat Blade Screwdriver
Adjustable Wrench
Channel Locks
Plumbers' Putty or Caulking
Phillips Screwdriver
BOTTOM OF
TUB
74" FOR
HEAD CLEARANCE
FINISHED WALL
8-1/8" REF.
4"
6-1/2"
18"
OPTIONAL
TOP OF
TUB RIM
Pipe Wrench
BATH/SHOWER TRIM KIT
8-3/8"
2-3/8"
MOMENTS
THREADED INLETS (STOPS)
INLETS
1/2" NPT
5-7/8"
OUTLETS
1/2" NPT
3-3/8"
INLETS 1/2" NPT
1/2" NPT
OUTLETS
1/2" NPT
3-3/8"
3-3/8"
THREADED INLETS
INLETS
4-1/16"
4-1/16"
INLETS
1/2" NOM.
COPPER
SWEAT
SHR. 1/2" NOM.
COPPER SWEAT
TUB 1/2" NOM.
COPPER SWEAT
2"
SWEAT
INLETS
SHR. 1/2" NOM.
COPPER SWEAT
TUB 1/2" NOM.
COPPER SWEAT
4-1/16"
5-7/8"
SWEAT
INLETS (STOPS)
INLETS
1/2" NOM.
COPPER
SWEAT
"SEE ILLUSTRATION "
1/2" NPT
1-1/2" REF.
3/4"" TO 2-3/8"
SHR
TUB
OPTIONAL TO FINISHED
FLOOR USUALLY
BETWEEN 65'' AND 80''
M968951 Rev. 1.4
DO: SIMPLY RINSE THE PRODUCT CLEAN WITH CLEAR WATER. DRY WITH A SOFT COTTON FLANNEL CLOTH.
DO NOT: DO NOT CLEAN THE PRODUCT WITH SOAPS, ACID, POLISH, ABRASIVES, HARSH CLEANERS, OR A
CLOTH WITH A COARSE SURFACE.
CARE INSTRUCTIONS:
Thank you for selecting American-Standard...the benchmark
of fine quality for over 100 years.
To ensure that your installation proceeds smoothly--please
read these instructions carefully before you begin.
Product specificaties
| Merk: | American Standard |
| Categorie: | Douchesysteem |
| Model: | Moments T506508.002 |
Heb je hulp nodig?
Als je hulp nodig hebt met American Standard Moments T506508.002 stel dan hieronder een vraag en andere gebruikers zullen je antwoorden
Handleiding Douchesysteem American Standard
24 Februari 2026
24 Februari 2026
24 Februari 2026
24 Februari 2026
24 Februari 2026
24 Februari 2026
24 Februari 2026
24 Februari 2026
24 Februari 2026
24 Februari 2026
Handleiding Douchesysteem
Nieuwste handleidingen voor Douchesysteem
15 Februari 2026
14 Februari 2026
14 Februari 2026
14 Februari 2026
13 Februari 2026
13 Februari 2026
13 Februari 2026
13 Februari 2026
13 Februari 2026
12 Februari 2026