Speakman S-2460 Handleiding
Speakman Digitális fényképezőgép S-2460
Bekijk gratis de handleiding van Speakman S-2460 (1 pagina’s), behorend tot de categorie Digitális fényképezőgép. Deze gids werd als nuttig beoordeeld door 13 mensen en kreeg gemiddeld 4.4 sterren uit 8 reviews. Heb je een vraag over Speakman S-2460 of wil je andere gebruikers van dit product iets vragen? Stel een vraag
Pagina 1/1

SPEAKMAN
®
400 Anchor Mill Rd. New Castle, DE 19720 Phone: 800-537-2107 Fax: 800-977-2747
5/04/17 www.speakman.com 92-S-2460-02
SPEAKMAN
®
S-2460
Installation, Maintenance & Operation Instructions
ADJUSTA-SPRAY® SOLID BRAS
ADJUSTA-SPRAY® SOLID BRAS
ADJUSTA-SPRAY® SOLID BRAS
ADJUSTA-SPRAY® SOLID BRASADJUSTA-SPRAY® SOLID BRASS WALL MOUNT SHOWER HEAD
S WALL MOUNT SHOWER HEAD
S WALL MOUNT SHOWER HEAD
S WALL MOUNT SHOWER HEADS WALL MOUNT SHOWER HEAD
DESCRIPTION
Polished chrome plated solid brass ADJUSTA-SPRAY® wall mounted shower head, 2” face. 60 spray channels at three
different angles to allow a full coverage shower. Drilled for but less mounting bolts. Water conserving pressure
compensating AUTOFLO® device reduces flow to 2.5 GPM / 9.46 LPM maximum to meet existing ANSI A112.18.1M
Standard. Vandal resistant standard. ½” NPTF back inlet.
SPECIFICATIONS
SUPPLY INLET: ½” NPTF
FLOW RATE: 2.5 GPM / 9.46 LPM MAXIMUM
FLOW CONTROL: VARIABLE
SHIPPING WEIGHT: 1.7 LBS
Options:
AP
Anchor Plate Assembly with Mounting Screws
INSTALLATION
Apply pipe thread tape in a clockwise direction to threads of supply nipple. Pipe joint compound may be used instead of
tape. Turning in a clockwise direction, thread the shower head on to the supply nipple. Tighten & position with a strap
wrench or a pair of soft jaw pliers. Mark and drill holes for mounting screws (not provided). Note: If necessary, remove
shower head and use proper screw anchor (3) (not provided). Turn the water supply on and check for leaks. Tighten
mounting screws (3).
OPERATION
To adjust the spray pattern of the shower head, loosen the side set screw with a 3/32” hex wrench, then rotate the spray
face with a 3/16” hex wrench to the desired spray. Tighten the side set screw.
MAINTENANCE
The gleaming finish of your SPEAKMAN WATERSAVER® shower head can be cleaned by using mild soap and warm
water. Dry immediately with a soft, clean cloth for best results. The flow control device limits water flow to 2.5 gallons per
minute. The small orifices may become clogged with scale and other minerals found in potable water. To clean the flow
regulator, remove the shower head from the wall, pull out the locking tab, dislodge the flow regulator and clean as
necessary.
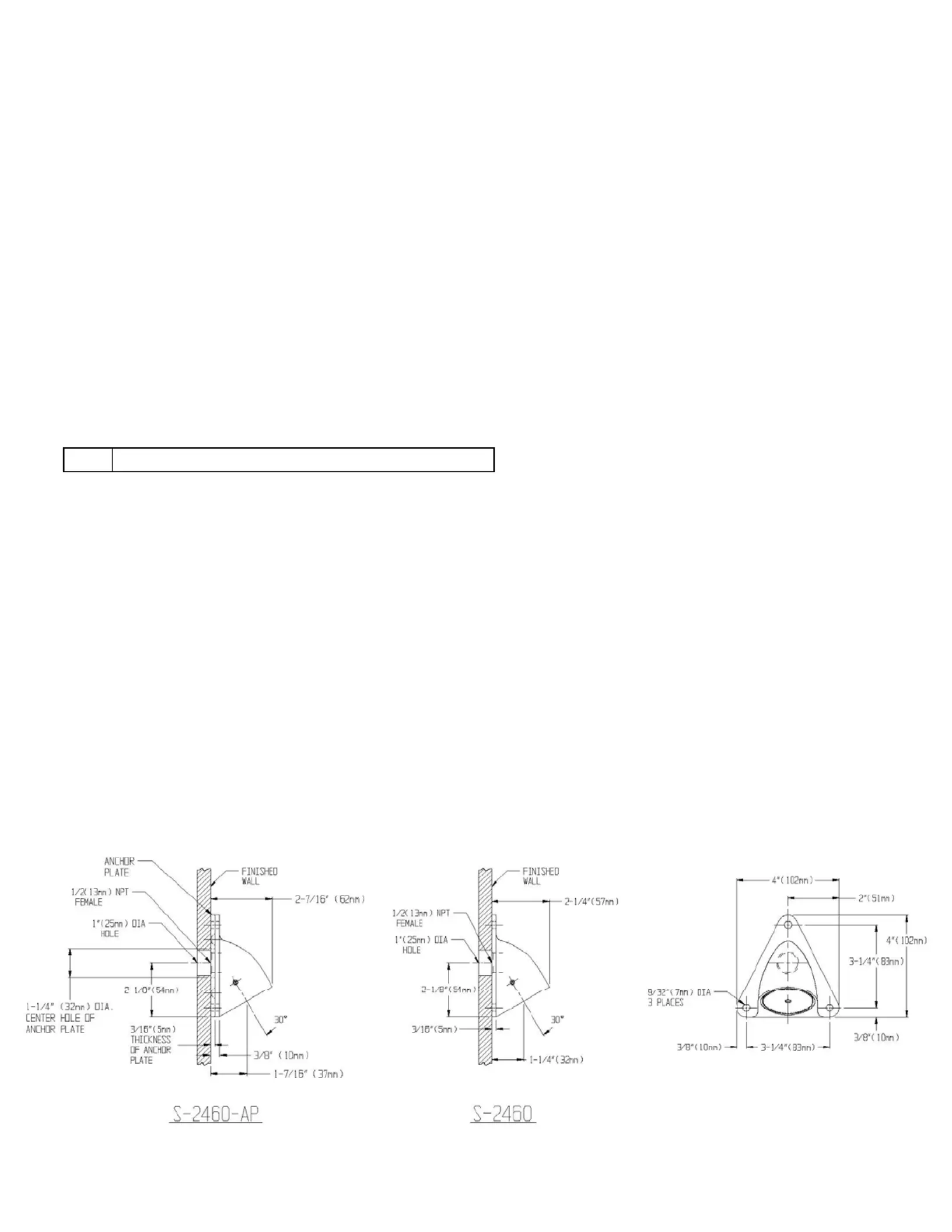
ROUGH-IN MEASUREMENTS
Product specificaties
| Merk: | Speakman |
| Categorie: | Digitális fényképezőgép |
| Model: | S-2460 |
Heb je hulp nodig?
Als je hulp nodig hebt met Speakman S-2460 stel dan hieronder een vraag en andere gebruikers zullen je antwoorden
Handleiding Digitális fényképezőgép Speakman
24 December 2025
23 December 2025
23 December 2025
23 December 2025
21 December 2025
21 December 2025
21 December 2025
21 December 2025
21 December 2025
21 December 2025
Handleiding Digitális fényképezőgép
Nieuwste handleidingen voor Digitális fényképezőgép
13 Januari 2026
12 Januari 2026
12 Januari 2026
12 Januari 2026
12 Januari 2026
29 December 2026
24 December 2025
24 December 2025
19 December 2025
18 December 2025