American Standard Town Square S T455740.002 Handleiding
American Standard Douchesysteem Town Square S T455740.002
Bekijk gratis de handleiding van American Standard Town Square S T455740.002 (4 pagina’s), behorend tot de categorie Douchesysteem. Deze gids werd als nuttig beoordeeld door 4 mensen en kreeg gemiddeld 4.0 sterren uit 3 reviews. Heb je een vraag over American Standard Town Square S T455740.002 of wil je andere gebruikers van dit product iets vragen? Stel een vraag
Pagina 1/4

- 1 -
Product names listed herein are trademarks of AS America, Inc.
© AS America, Inc. 2018
Thank you for selecting American Standard...
the benchmark of fine quality for over 140 years.
To ensure that your installation proceeds smoothly-please read
these instructions carefully before you begin.
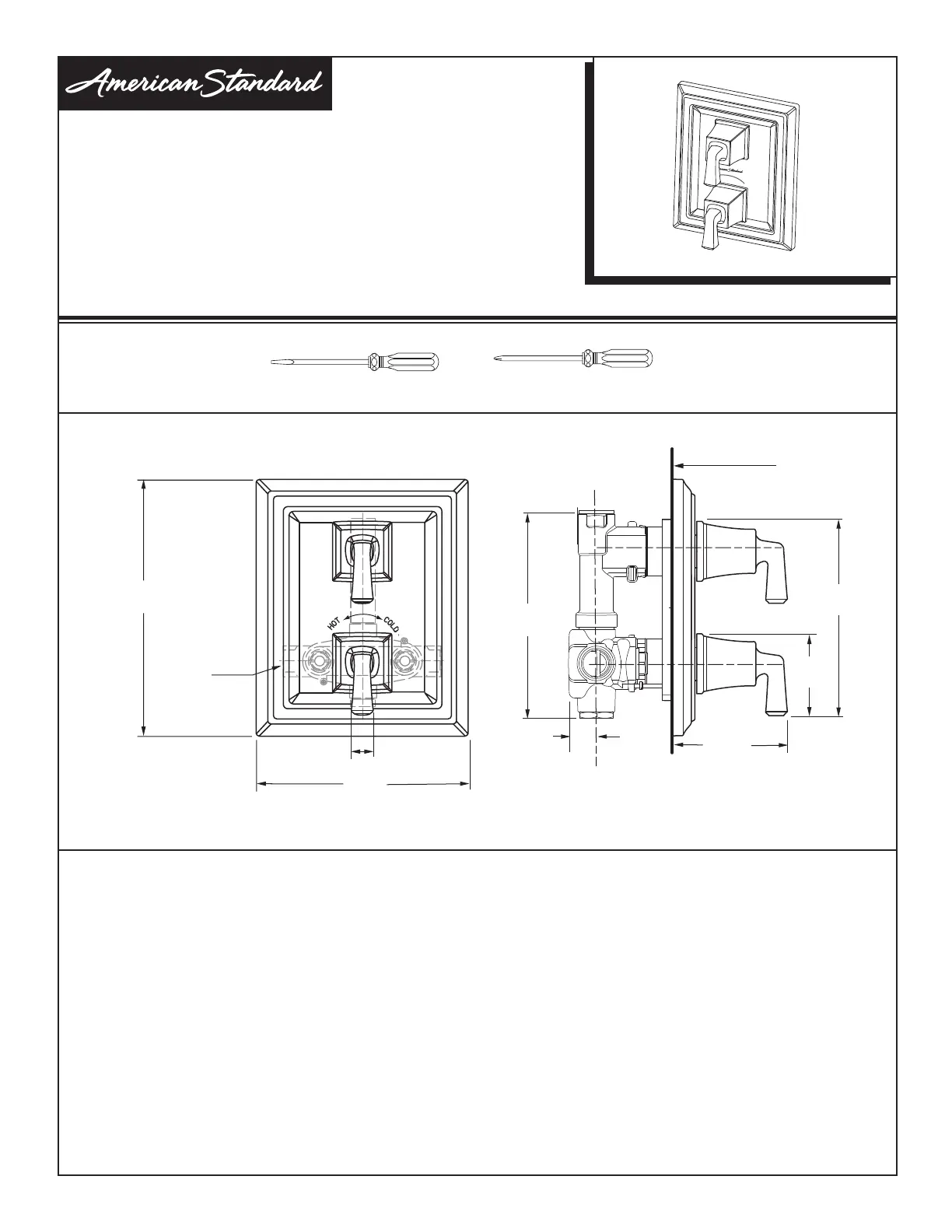
RECOMMENDED TOOLS
ROUGHING-IN DIMENSIONS
CARE INSTRUCTIONS:
TOWN SQUARE
®
S
CENTRAL THERMOSTAT WITH
VOLUME CONTROL TRIM KIT
INSTALLATION
INSTRUCTIONS
T455740
Certied to comply with ANSI A112.18.1M
M965902 (4/18)
• To keep your new faucet looking new, please follow
these simple care instructions:
DO:
• Simply rinse the faucet clean with clear water.
• Dry the faucet with a soft cotton cloth.
DO NOT:
• Do not use any abrasive cleaners, cloths, or
paper towels.
• Do not use any cleaning agents containing
acids, polish abrasives, or harsh cleaners or
soaps.
• Regular and routine cleaning will reduce the need for
heavy cleaning and polishing. If heavy cleaning is
required, the following procedures are recommended:
• Remove as much surface dirt and lm using clear
water and soft cotton cloth (as described above).
• Use any of the following to remove tough surface
lm and build-up:
• Mild liquid detergents
• Clear ammonia free liquid glass cleaners
• Non-acidic, non-abrasive gentle liquid or fully dissolved
powder cleansers mixed according to manufacturers
directions.
• Non-abrasive liquid polishers
• Once clean, rinse faucet again with clear water to thoroughly
remove cleaner or polish and blot dry with a soft cotton cloth.
Failure to follow these care instructions may
damage the Faucet’s finish.
Flat Blade Screwdriver
Phillips Screwdriver
C
7-5/16"
(186 mm)
7-1/16"
(179 mm)
1-11/16"
(42 mm)
NOTE: FITTING
MUST BE INSTALLED
WITH VOLUME CONTROL
ON TOP.
R520
1/2" NPT INLETS
or
R540
3/4" NPT INLETS
FINISHED
WALL
9 "
(230 mm)
7-1/2"
(190 mm)
3/4"
(20 mm)
3-15/16"
(74 mm)
3-3/16"
(87 mm)
Product specificaties
| Merk: | American Standard |
| Categorie: | Douchesysteem |
| Model: | Town Square S T455740.002 |
Heb je hulp nodig?
Als je hulp nodig hebt met American Standard Town Square S T455740.002 stel dan hieronder een vraag en andere gebruikers zullen je antwoorden
Handleiding Douchesysteem American Standard
28 Februari 2026
28 Februari 2026
28 Februari 2026
27 Februari 2026
27 Februari 2026
27 Februari 2026
27 Februari 2026
27 Februari 2026
26 Februari 2026
26 Februari 2026
Handleiding Douchesysteem
Nieuwste handleidingen voor Douchesysteem
10 April 2026
9 April 2026
9 April 2026
8 April 2026
7 April 2026
7 April 2026
7 April 2026
7 April 2026
7 April 2026
7 April 2026